Kellyville West Shopping Center

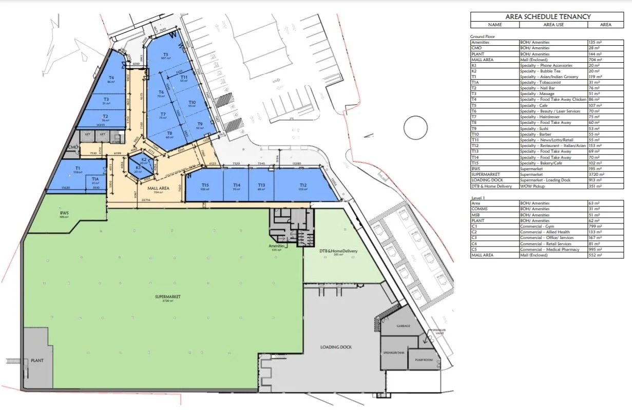
Ground Floor

 

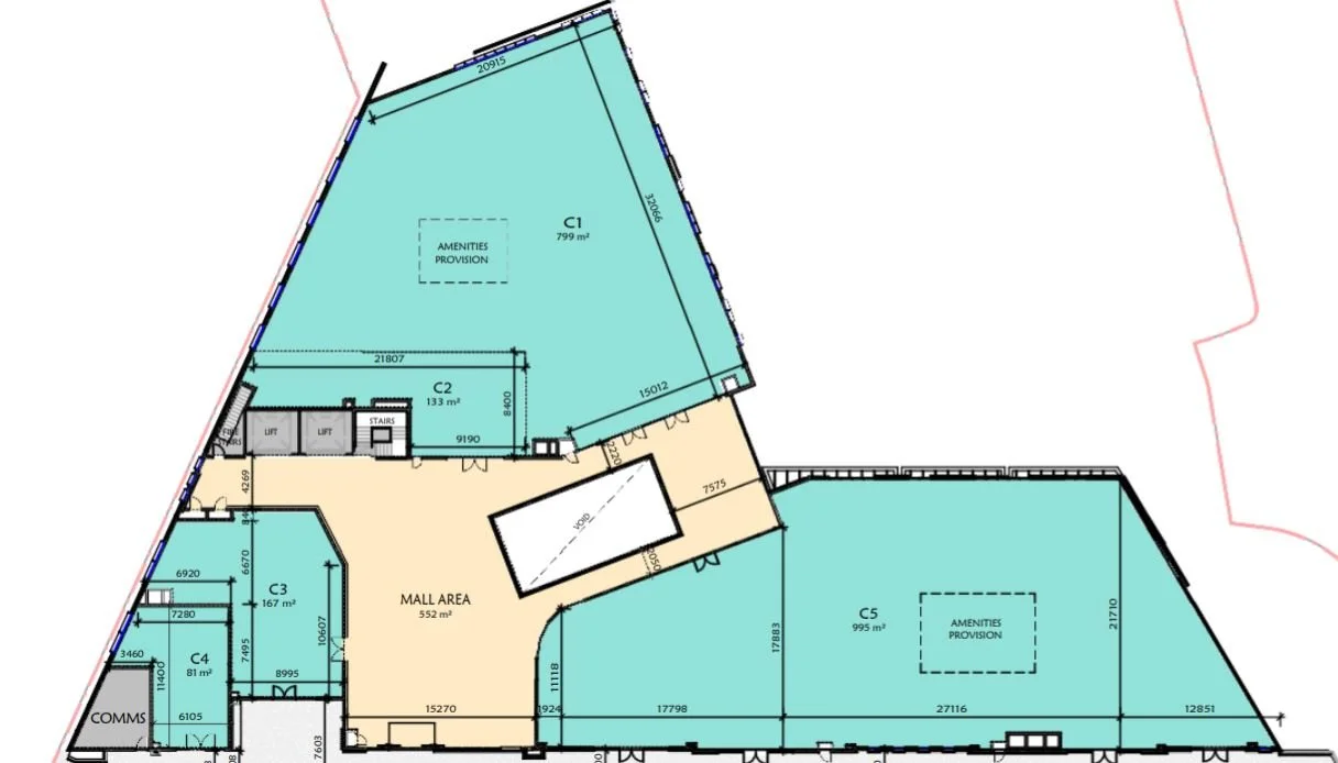
Upper Floor

 

The Development

Woolworths are constructing a new shopping centre on the corner of Memorial Drive and Severn Vale Drive, Kellyville West.

The development will include a Woolworths Supermarket of 4,011sqm (including home delivery), approximately 1,210sqm of specialty retail and 2,100sqm of commercial space built over 2 levels.

The specialty stores on ground level will be divided into approximately 16 tenancies, including 2 kiosks. It is proposed that a Liquor Store will occupy a space within the supermarkets.

Level one will comprise of a medical centre, gym, allied services, dentist and training and educational services.

The total lettable area is approximately 7,321 sqm. Parking will also be provided for 298 cars.